NKBA competition 2025 for the Indianapolis Propylaeum

An NKBA Competition based around the Indianapolis Propylaeum’s Apartment for a redesign/renovations so that they may have the apartment be rented out by people since the space was unoccupied and unused.

Bathroom & Competition info

For this Competition we had to choose Two Spaces in which we would design, but One of the spaces had to be either the Kitchen or the Bathroom. I chose the Bathroom and the Living/Dining Room. We were not allowed to create New Fixture spots or change the fixture spots. This also goes along with the Framework except we were allowed to add new framework. The Competition was also Sponsored by KOHLER and Cambria, so any of their products or materials we used in the design would be provided for free for the Propylaeum. This Incentivized us to use their Products and Materials as much as possible in anyways we wanted to, including in unique ways.

The Style and Design I went for was inspired by a Renovation of an older home I ran across when looking for Inspiration. The Flooring for the Bathroom was a Custom Design that I made using Cambria Quartz. I made sure that the Material would be Slip Resistant.

East Elevation

Bathroom Floor Plan

West Elevation

For the Bathroom design the Sink Vanity and Mirror are Custom Designed Pieces. The Closest Behind the Shower/Bath is an incredibly small closest that you must step up into by about 7 inches. Because of its size changing it to Pull Out Drawers gives more storage capability to the users. Where the sink vanity is now used to be a Door that the owners were going to get rid of either way this gave us more space to work with as long as we Didn’t Change the Location of the Toilet Fixture.

The North and South Elevations are not included because not much can be seen from them and since we Can Not Change the Windows or the Doors include their Frames not much changed for both the elevations.

Bathroom Design.

Complete Floor Plan

Rendering & Custom Work


Thoughtfully crafted to elevate what matters most. The custom work of the Sink Vanity is based of the furniture and storage Styles of Chippendale and Queen Anne. The Sink Fixture is of KOHLER brand along with the Sink Under Mount. The Countertop and legs are made of Cambria Quartz.

Renderings

The Purpose of the two Different rendering is because the one on the Left is to show how it is Walking Into the Bathroom while the one on the Right is to showcase the Sink Vanity and the Mirror.

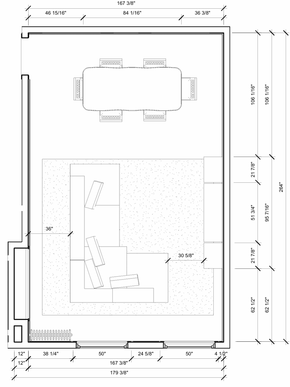
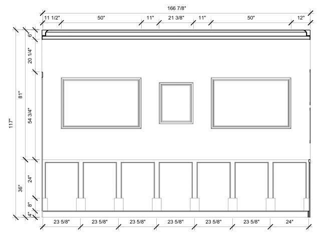
Living/Dining Room

North Elevation

For the Dining Room the Custom designs is the Dining Table, Bookcase and its Framework, and the Tv Stand. The Design of the Living/Dining Room is the Same the Bathroom being inspired by the same Elements and Styles. The Below Elevations have a Colored Version to show the different colors but more specifically the Wall Paneling this is because of the different Wood Stain used on the different parts is to create a Blend between the Wallpaper and the Paneling.

East Elevation

West Elevation

South Elevation

Renderings

Floor Plan

Previous
Previous

Dayton, OH Bible Baptist Church Project

Next
Next

Astronomy Project