Dayton, Ohio Bible Baptist Church Project. First Semester of my Junior Year.

Ball State Bible Baptist Church Project

Project Details

About the Church

This Project was done with a Bible Baptist Church in Dayton, Ohio. The church is called Bible Baptist Church, and they have been around in Ohio for many years. The church started with a group of Baptist Christians who wanted to start their own church and since they didn’t have much money all of their original design and layout were made by them. Until they added a basement and eventually a School.

What They Needed

They wanted to Renovate the building in its entirety because their Community was shrinking and was getting older so they wanted to have a new Change to draw in a Younger crowd but still stay to their Beliefs. They also wanted to change Certain Spaces because of the fact they were not being used for their Original Purpose and certain areas tended to get cramped very quickly. They also wanted to get Inspiration from our designs for their Future Plans.

How We Chose Our Design

After Meeting With The Clients

We chose our design Based On what they told us they wanted and what we thought Would Fit Best with their beliefs. This included our Color choices, Materials, and Layout. This was a big part of what we had to Discuss and make Decision about since Baptist Christians are very Simply about their designs. They do not want any Art or Memorials of Characters from the Bible. They also do not believe in any Saints the same way as Catholics and Orthodox Christians. This means that our Design would have to be more Simply or Minimalistic while still standing out and drawing attention. Because of this we went for a Modern/Minimalistic/Calming design.

Original Floor Plan With What Is To Be Demolished

Basement Floor Plan + Demo

The part of the Basement on the Left is the newer part of the building, that is the Cafeteria and Kitchen for the School. The Right side is bathrooms and Classrooms with a large area for Indoor Activities.

Main Level Floor Plan + Demo

On the Right is their Sanctuary with smaller Offices and Bathrooms. The Left side that is the newer area is where most of their Classrooms where with one larger classroom at the end of the hallway.

New Floor Plans

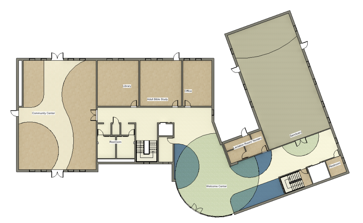
Main Level New Floor Plan

We decided to keep the Sanctuary in the same location for the Space that is provided in that area. We also extended their Entrance out and move some of the Walls back since one of their Complaints was that after any sort of event the entrance and hallways get very Cramped. They would like to have a Larger Space so people can Talk and Socialize after any events. Since they were No Longer going to be using the new space as a School, we changed the purpose and layouts of the rooms to better fit their Needs and Wants. Adding a Tech/Library room, Adult Bible Study, an Office, and a Community Center. We also added a Deck that has a small Green House Garden for kids to learn about plants.

Basement New Floor Plan

We did decide to keep the Kitchen and Lunchroom because we felt that Food is something that can always bring Communities together. So, it is a Lunch and Learn area for the church to use to build stronger connections. We also changed the classrooms on the Left side to being a Music Room were kids, and anyone can learn to play an instrument. We made this choice because some people learn to play instruments through church, and learn for their church so we saw this as a way to bring people closer. On the Right we changed it to an Area for Kids. Adding a nursery, kids event space, and Children's Bible Study.

Exterior Design Work

Front Exterior View

Rear Exterior Views

The Patio/Deck as seen here has plenty of space for them to arrange the Furniture however they may want. We wanted the Patio/Deck to be an area for people to come and Relax while also being able to talking to anyone else that they may want to.

Materials Selected for the Patio/Deck

A

  • Material: Laminate

  • Color/Style: NeoWaknut/Fine Velvet Texture

  • Manufacturer: Wilson Art

  • Application: Furniture

B

  • Material: Fabric

  • Color/Style: Morning Glory/Arigato

  • Manufacturer: Perennials

  • Application: Upholstery

We added a new entrance for the Community Center and made the Main Entrance a Curved Curtain Wall. We also made a Ramp for the Main Entrance so that anyone who is Accessible can still make it inside for any events. They also wanted a Re-brand design for their church.

C

  • Material: Fabric

  • Color/Style: Rusty/Dotty

  • Manufacturer: Perennials

  • Application: Upholstery

D

  • Material: Advanced PVC

  • Color/Style: Cypress

  • Manufacturer: TimberTech

  • Application: Flooring

Interior Design Work

Welcome Center

Material Choices

A

  • Material: Laminate

  • Color/Style: Beige Elm

  • Manufacturer: Formica

  • Application: Furniture

B

  • Material: Laminate

  • Color/Style: Fjord Elm – F8577

  • Manufacturer: Formica

  • Application: Walls

 C

  • Material: Wall Covering

  • Color/Style: Reflections WC - Crystalline

  • Manufacturer: Formica

  • Application: Walls

 D

  • Material: Wall Covering

  • Color/Style: Per-Sueded – Tantalizing Teal

  • Manufacturer: Carnegie

  • Application: Upholstery

E

  • Material: Fabric

  • Color/Style: Botanic Print – 6382 I 6

  • Manufacturer: Carnegie

  • Application: Upholstery

 F

  • Material: Metal

  • Color/Style: Gold

 

G

  • Material: Laminate

  • Color/Style: Chestnut Woodline

  • Manufacturer: Formica

  • Application: Furniture

H

  • Material: Terrazzo

  • Color/Style: Green w/ Blue Flecks

  • Manufacturer: Santa Rossa Mosaic & Tile

  • Application: Flooring

Seating For Welcome Center

Add so People may Sit down after any Events to Socialize and Relax

I

  • Material: Terrazzo

  • Color/Style: Green w/ light Green Flecks

  • Manufacturer: Santa Rossa Mosaic & Tile

  • Application: Flooring

 J

  • Material: Fabric

  • Color/Style: Precision – 6332 | 25

  • Manufacturer: Carnegie

  • Application: Upholstery

 K

  • Material: Terrazzo

  • Color/Style: Beige w/ White Flecks

  • Manufacturer: Santa Rosa Mosaic & Tile

  • Application: Flooring

 L

  • Material: Terrazzo

  • Color/Style: Navy with Light Blue Flecks

  • Manufacturer: Santa Rossa Mosaic & Tile

  • Application: Flooring

Welcome Center Desk

Coffee Station

This is add to the design because the Client always has Coffee ready to offer to anyone who wants some or Hot Coco. So we decide to Keep It in the design.

Welcome Center Walkthrough

Community Center

Material Choices

A

  • Material: Laminate

  • Color/Style: Fjorde

  • Manufacturer: Formica

  • Application: Walls

 B

  • Material: Laminate

  • Color/Style: Beige Elm

  • Manufacturer: Formica

  • Application: Walls, Furniture

 C

  • Material: Wall Covering

  • Color/Style: Alameda - Almond

  • Manufacturer: Momentum

  • Application: Upholstery

 D

  • Material: Fabric

  • Color/Style: Coatbridge – Robins Egg

  • Manufacturer: Momentum

  • Application: Upholstery

E

  • Material: Fabric

  • Color/Style: Botanic Print – 6382 I 6

  • Manufacturer: Carnegie

  • Application: Upholstery

Rendered Views

1

2

F

  • Material: LVT

  • Color/Style: Hearth 4.5 mm Marble Dust

  • Manufacturer: Interface

  • Application: Flooring

 G

  • Material: Metal

  • Color/Style: Gold

 

H

  • Material: Carpet

  • Color/Style: Whole Earth Collection – WE152

  • Manufacturer: Interface

  • Application: Flooring

 I

  • Material: Fabric

  • Color/Style: Precision

  • Manufacturer: Carnegie

  • Application: Upholstery

Floor Plan

Info

Community Center is designed for a Multipurpose space for Community Events. Whether that be a game night, Bible break out groups, drawing classes, Etc. It is Designed to be used for anything that the Church may Need.

3

Kids Basement & Music Room

Material Choices

Sanctuary Design & Wayfinding

Material Choices

Sanctuary Floor Plan

E

  • Material: Fabric

  • Color/Style: Infusion - Azure

  • Manufacturer: Momentum

  • Application: Upholstery

F

  • Material: Fabric

  • Color/Style: Amuse - Quartz

  • Manufacturer: Momentum

  • Application: Upholstery

G

  • Material: Fabric

  • Color/Style: Infusion - Dijion

  • Manufacturer: Momentum

  • Application: Upholstery

H

  • Material: Metal

  • Color/Style: Brass

I

  • Material: Homogeneous

  • Color/Style: Mipolam Troplan 1006 Earth

  • Manufacturer: Gerflor

  • Application: Flooring

J

  • Material: Homogeneous

  • Color/Style: Mipolam Troplan 1004 Earth

  • Manufacturer: Gerflor

  • Application: Flooring

2

E

  • Material: Wallcovering

  • Color/Style: Alameda - Almond

  • Manufacturer: Momentum

  • Application: Walls

F

  • Material: Fabric

  • Color/Style: Hum - Glacier

  • Manufacturer: Momentum

  • Application: Upholstery

G

  • Material: Metal

  • Color/Style: Gold

H

  • Material: Carpet

  • Color/Style: Whole Earth Collection – WE152

  • Manufacturer: Interface

  • Application: Flooring

Children's Basement Floor Plan

1

2

A

  • Material: Wall Covering

  • Color/Style: Reflections WC - Crystalline

  • Manufacturer: Momentum

  • Application: Wall

B

  • Material: Wall Covering

  • Color/Style: Reflections WC – Island Sky

  • Manufacturer: Momentum

  • Application: Walls

C

  • Material: Laminate

  • Color/Style: Beige Elm

  • Manufacturer: Formica

  • Application: Wall, Furniture

D

  • Material: Laminate

  • Color/Style: Chestnut Woodline

  • Manufacturer: Formica

  • Application: Furniture

A

  • Material: Laminate

  • Color/Style: Chestnut Woodline

  • Manufacturer: Formica

  • Application: Lectern

B

  • Material: Paint

  • Color/Style: PPG1084-2

  • Manufacturer: PPG Paints

  • Application: Walls

C

  • Material: Laminate

  • Color/Style: Fjorde Elm

  • Manufacturer: Formica

  • Application: Walls, Furniture

D

  • Material: Leaded Style Glass

  • Color/Style: Kathedral Clear 4mm

  • Manufacturer: Architectural Glass

  • Application: Windowpanes

Rendered Views

We designed new Pews to fit the design and because the Client had Requested a new look for the Pews. We also Curved the Stage where the Pastor speaks. Then more seats behind there for when the have Choir Services.

The Client also requested more Signage they can have. So we designed new Signs that can be Mounted outside rooms to help people find the right rooms they are looking for.

CBS (Child Bible Study) and a Nursery on this side of the basement specifically for more of the Younger kids. Everything is designed to either be to hard for kids to pick up and Throw or not too be used to hurt anyone. This is because we learned from the Client that they have had issues with Kids Throwing anything they can get their hands on.

Rendered Views

1

Music Room Rendering

Next
Next

NKBA Competition Project